Centred on an open kitchen and expanded master bedroom, this Bukit Batok resale flat by SG Interior Design is well-suited to the lifestyle of a sociable bachelor.
3 February 2026
Home Type: 5-room HDB flat
Floor Area: 1,227sqft
Text by Disa Tan
Entertaining feels effortless when a home exudes comfort and easy flow. For a laid-back bachelor who enjoys hosting friends yet values moments of solitude, designers Brendon Choo and Estelle Lee from SG Interior Design adopted a Boho-Scandi aesthetic for his resale flat in Bukit Batok West. Their open space planning is complemented by softened, sculptural details, most notably an organic, curved portal that adds character to the space.

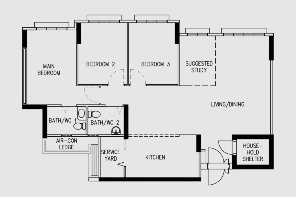
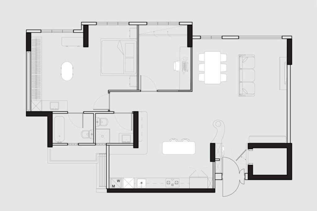
A sense of ease was not present in the original layout, which comprised three bedrooms and a conventional, enclosed plan. While functional, it did not align with the homeowner’s preference for an open, sociable home. Reflecting on the earlier layout, Brendon and Estelle share, “The spaces felt compartmentalised. By retaining key structural elements and selectively removing walls, we were able to open up the kitchen and improve the connection between the communal zones.”

With the layout opened up, the kitchen naturally becomes the heart of the home. A generous island grounds the space, and the removal of the service yard extends the footprint, allowing the kitchen, dining and living areas to flow together seamlessly.


Material choices leaning towards Boho-Scandi influences further soften the kitchen’s presence within the open plan. Muted green cabinetry lends visual weight, while light-toned worktops keep the overall palette restrained and calm. Texture is layered through woven pendant lights, timber accents and open shelving, lending the kitchen a relaxed quality that puts one at ease.

Flowing directly from the open kitchen, the living area adopts a similarly relaxed Boho-Scandi sensibility, relying largely on loose furniture rather than built-in carpentry. This keeps the space visually light and adaptable for both daily use and hosting.

Near the entrance, a built-in settee with an integrated planter provides a practical spot for putting on shoes while introducing a warm timber accent. Its curved form helps soften the transition into the living space without disrupting the open plan.

The expanded master bedroom is the standout feature of the home. “We merged one common bedroom with the master to create space for a dedicated wardrobe and vanity area,” the designers explain. The result is a layout that supports both rest and everyday routines with ease.

Within the master suite, the wardrobe area is organised as a distinct dressing zone. Full-height wardrobes feature repeated arched panels and warm timber finishes, adding a subtle touch of Boho chic. The reconfiguration creates a spacious walk-in wardrobe and dedicated vanity area, turning the bedroom into a more indulgent retreat. At the same time, a central island efficiently brings storage and daily routines together.

Through considered decisions and clear planning, this 12-week, $90,000 transformation turns a resale flat into a welcoming bachelor’s pad. It balances openness with comfort, equally suited to hosting friends or unwinding at the end of the day.
SG Interior Design
www.sginterior.com.sg
www.instagram.com/sginteriordesignn
www.youtube.com/@SGInteriorDesignn
www.tiktok.com/@sginteriordesignn
We think you may also like A Bukit Batok flat with bold new energy
Like what you just read? Similar articles below
This five-room resale flat in Joo Seng blends dark interiors, natural textures, and clever space planning for modern family living.
A mid-century modern home designed by Ofthebox showcases its owners’ fun side with the usage of bold colours and materials.