Many are averse to having a dark colour scheme for their homes, based on the premise that dark colours make a space feel smaller and less welcoming. However, a dark colour palette can actually do well to imbue mood and cosiness into a space, apart from giving it statement-making style! This 3-bedroom condominium unit, home to a couple and their three children, illustrates this perfectly.
Designed by Lawrence Puah, Jenny Phumthida and Ash Ashiqin of Akihaus Design Studio, the new home embraces the dark side, and is artfully balanced by white and wood tones – also an ever-popular palette.
Living area
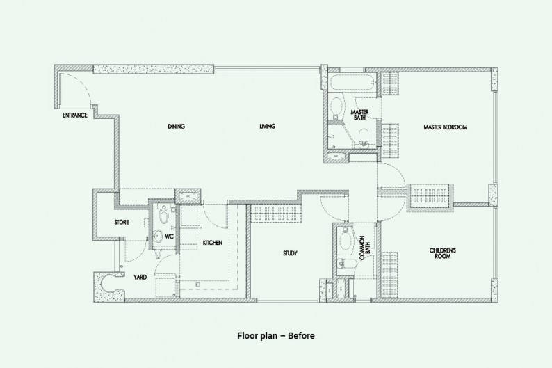
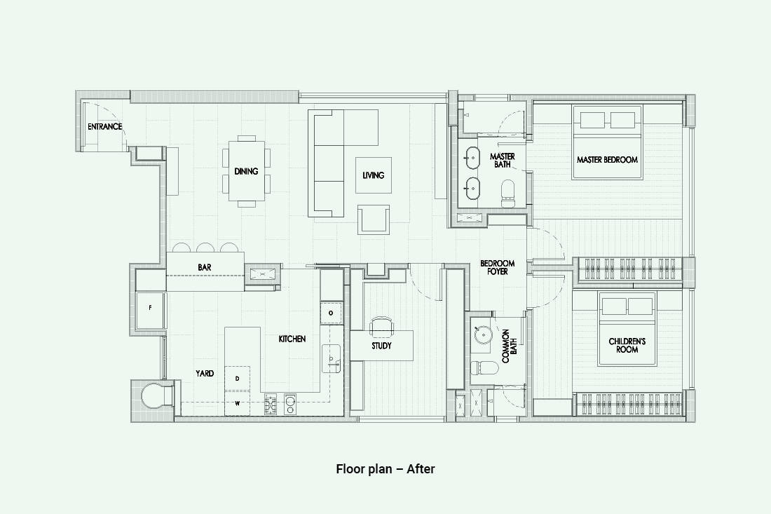
The designers envisioned a seamless space within the communal areas – including the kitchen, to allow for a social and comfortable space for the family. And while the living and dining areas – visible upon entering the apartment – maintain a predominantly black colour palette, the dark colours segue into a lighter, but equally stylish, tone in the adjacent newly configured kitchen.
Kitchen
The designers reconfigured the layout of the kitchen and yard, ironing out the structural recesses to create a more streamlined and spacious cook space.
Notable features are the peninsula counter that separates the main kitchen and laundry area, and the service bar counter that faces the dining area.
Dining area
Large 3-metre textured black tiles, cut to various widths, clad the walls of the living and dining zones. The sleek unidirectional joint lines (finished with blackened steel channels), organic texture and subtle sheen of these wall panels give the interiors just enough drama – setting the scene for the family’s characterful contemporary furniture, art and decor pieces to take centre stage.
A wire hanging system was also installed to allow the homeowners the flexibility of displaying and moving around their paintings.
Master bedroom
Departing from the dark ambience, the private areas such as the bedrooms are accentuated in honey-hued wood tones. Lawrence shares that wood was intentionally used to create a warmer atmosphere that better suits the intimate spaces.
In the master bedroom, the raised platform (where the bed is situated) is made using teakwood strips, which continue up the bedhead wall onto the ceiling – resulting in a C-shape cocoon-like sleeping area.
Children’s room
The junior bedroom also features a similar enveloping structure, with teakwood strips covering all four sides and also concealing a series of wardrobe doors.
Master bathroom
The master ensuite also underwent major renovation works. Lawrence redesigned it to accommodate a double vanity, and removed the bathtub to create a more spacious shower area.
Akihaus Design Studio
www.akihaus.com



























Apartment
Apartment
2540 SQFT
Apartment
1270 SQFT
Landed
1756 SQFT
Apartment
1604 SQFT
Landed